
擬訂新北市中和區捷運段376-1地號等65筆土地都市更新案
一、本案推動進度
1. 事業計畫申請報核:民國101年01月19日
2. 事業計畫核定:民國106年10月12日
3. 權利變換自辦公聽會:民國110年10月30日
4. 選屋期間:民國110年11月03日-12月月03日
5. 權利變換計畫申請報核:民國111年02月25日
6. 權利變換計畫公辦公聽會:民國111年09月15日
7. 權利變換計畫-第一次專案小組:民國111年11月24日
8. 權利變換計畫-第二次專案小組:民國112年09月20日
9. 權利變換計畫-第三次專案小組:民國113年04月12日
二、實施者與協力團隊
1.實 施 者:基泰建設股份有限公司
聯 絡 人:郭泳霈 特助
電話:02-2383-0666分機291
2.建築設計:彭繼賢建築師事務所
3.都更規劃:世騰國際規劃設計顧問有限公司(事業計畫階段)
冠霖不動產顧問股份有限公司(權利變換計畫階段)
4.估價單位:麗業不動產估價師聯合事務所(領銜)
連邦不動產估價師聯合事務所
中泰不動產估價師聯合事務所
三、本案基本資料
(一)基地位置
本計畫更新單元南側臨接興南路一段,西側臨接德州儀器公司(工業區),東側距離南勢角捷運站約80公尺。本計畫更新單元非位於更新地區內,為自行劃定之更新單元。在此處新增文本段落。
(二)更新單元範圍
1.本案更新單元範圍包括新北市中和區捷運段376-1、378、378-3、378-4、416、417、418、419、420、421、422、423、424、425、426、427、428、429、430、431、432、433、434、435、436、437、438、439、440、441、442、443、444、445、446、447、448、449、450、451、452、453、454、455、456、457、458、459、460、461、462、463、464、465、466、467、468、469、470、471、472、473、474、475、476地號等65筆土地,更新單元土地面積4,009.25㎡。2.本案更新單元範圍包括新北市中和區捷運段509、510、511、512、513、514、515、516、517、518、519、520、521、522、523、524、525、526、528、530、533、541、542、543、547、548、551、552、553、554、555、556、557、558、559、560、561、562、566、570、571、573、574、575、576、580、581、582、583、587、589、607、608、609、610、615、779、784、790、791、797、798、799、800、801、802、1074、1075、1076建號等69筆合法建築物,合法建築物面積5,138.59㎡。

四、容積獎勵及建築規劃設計(事業計畫已核定)
(一)都市更新容積獎勵
1. 申請容積獎勵額度:申請都市更新容積獎勵總計3,609.15㎡,約占基準容積比率之30.00%。
2. 申請容積獎勵項目:
(二)建築物設計
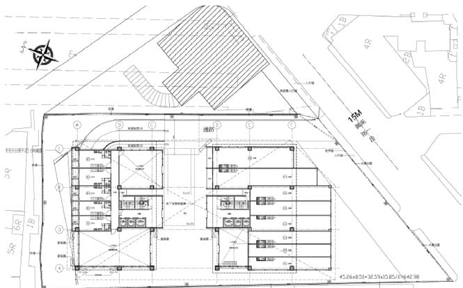
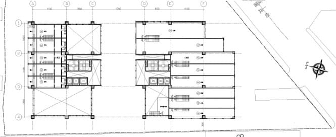
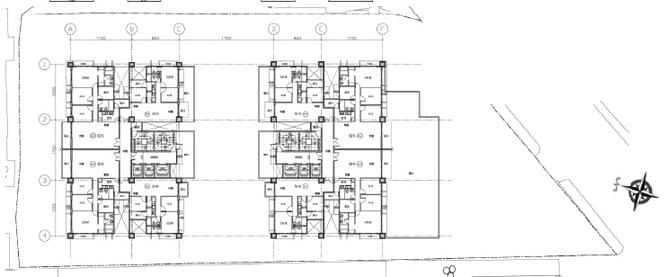
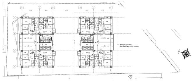
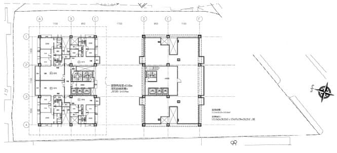
1. 型態、構造及樓層數:本計畫都市更新單元擬興建一幢二棟SRC結構地下3層、地上18層、地上19層集合住宅。
2. 規劃戶數及空間用途:地下層為防空避難室兼停車空間與停車空間。地面一、二層配置一般零售業、住宅入口門廳與單元套房。地面三層以上設置住宅單元,共145戶。
一層平面圖

二層平面圖

三層平面圖

四至十八層平面圖

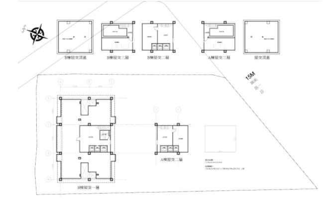
十九層平面圖

屋頂突層平面圖

地下一層平面圖

地下二層平面圖

地下三層平面圖

西向立面圖

南向立面圖‧北向立面圖

東向立面圖

透視模擬圖(一)

透視模擬圖(二)
(三)消防救災及逃生避難設計
1. 基地留設8Mx20M雲梯車救災操作範圍。
2. 於各樓層設置自動防火警報器、逃生方向指示燈、排煙設備、滅火器等設備,十一層以上設置偵煙及自動灑水設備,更新單元外部設置消防進水口,以利緊急救援時之用。
3. 緊急危難時可藉由建築物內部的垂直逃生動線通往東側社區主要出入口或西側逃生出口連接戶外逃生動線。
消防救災檢討圖

視覺景觀模擬圖‧建物外觀材質示意圖
(四)人車動線設計
1. 汽車停車空間設置於地下層,出口則位於興南路一段。相關位置請參見圖。未來基地停車出入口及內部,應設置明顯之標誌牌,導引車輛進出,依目前之停車空間出入口配置而言,應可達到交通影響內部化之處理原則。
2. 基地汽機車之停車空間出入口位於興南路一段,汽機車進出停車空間之動線規劃說明如下:主要係透過興南路一段主要道路轉進基地內私設通路進入本基地。
人車動線示意圖
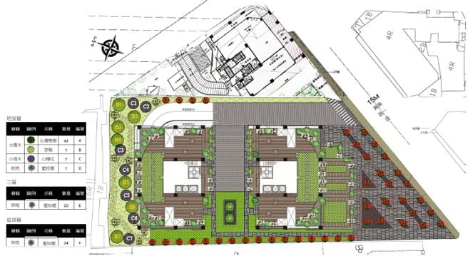
(五)景觀植栽設計 與新古典主義建築風格語彙一致,運用歐式花園的基本元素架構設計如:入口門廳、雕塑水景……。以現代簡約的設計線條搭配石材的質感做素雅但富有層次性的主題表現,透過夜間光景的襯托讓歐式花園也可以傳達東方禪的靜謐意境。

景觀計畫說明圖
© 2006. 基泰建設版權所有





















